 
					
				 
								| 閥體 | 閥杆 | 閥球 | 密封麵 | 墊片 | 填料 | 工作溫度 | 適用介質 | 
| WCB | 1Cr13 | 1Cr13 | 1Cr13 司太立合金 本體材料 | 柔性石墨 不鏽鋼加柔性石墨 08軟鋼 F304 F316 | 柔性石墨 編結石墨 | -29-425℃ | 水、蒸汽、油品 | 
| WC6 | 15CrMo | 15CrMo | -29-425℃ | ||||
| WC9 | 25Cr2MoV | 25Cr2MoV | |||||
| LCB | 304 | 304 | -46-354℃ | ||||
| CF8 | 304 | 304 | -196-600℃ | 部分酸、堿 | |||
| CF3 | 304L | 304L | |||||
| CF8M | 316 | 316 | |||||
| CF3M | 316L | 316L | 
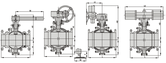
		外形結構圖
		
主要連接尺寸
| 公稱壓力 | 50 | 65 | 80 | 100 | 125 | 150 | 200 | 250 | 300 | 350 | 400 | 450 | 500 | |
| 係列1L | 216 | 241 | 283 | 305 | 356 | 394 | 457 | 533 | 610 | 686 | 762 | 864 | 914 | |
| 係列2L | - | - | - | - | - | - | 500 | 600 | 700 | 800 | 900 | - | 1000 | |
| H | 102 | 114 | 127 | 152 | 184 | 219 | 273 | 360 | 395 | 430 | 470 | 550 | 580 | |
| 手動 | H1 | 107 | 125 | 152 | 178 | 300 | 330 | 398 | 495 | 580 | 625 | 670 | 698 | 840 | 
| E | - | - | - | - | - | - | 115 | 116 | 171 | 171 | 257 | 257 | 257 | |
| F | - | - | - | - | - | - | 350 | 350 | 400 | 420 | 400 | 420 | 400 | |
| W | 230 | 400 | 400 | 650 | 1050 | 1050 | 600 | 600 | 800 | 800 | 800 | 800 | 800 | |
| WT(KG) | 12 | 16 | 22 | 35 | 58 | 74 | 205 | 322 | 460 | 576 | 864 | 1280 | 1600 | |
| 電動 | H2 | - | - | - | - | - | 554 | 600 | 652 | 760 | 770 | 830 | - | 940 | 
| L1 | - | - | - | - | - | 235 | 235 | 235 | 259 | 400 | 400 | - | 410 | |
| 氣動 | H3 | 274 | 379 | 389 | 479 | 552 | 666 | 736 | 926 | 1059 | 1127 | 1127 | 1468 | 1538 | 
| L2 | 270 | 405 | 405 | 576 | 576 | 776 | 776 | 776 | 1060 | 1060 | 1060 | 1360 | 1360 | |